Listed by Michael O'Dowd of KW Vermont (Phone: 802-598-7169)

Listing Sold by Coldwell Banker Hickok and Boardman
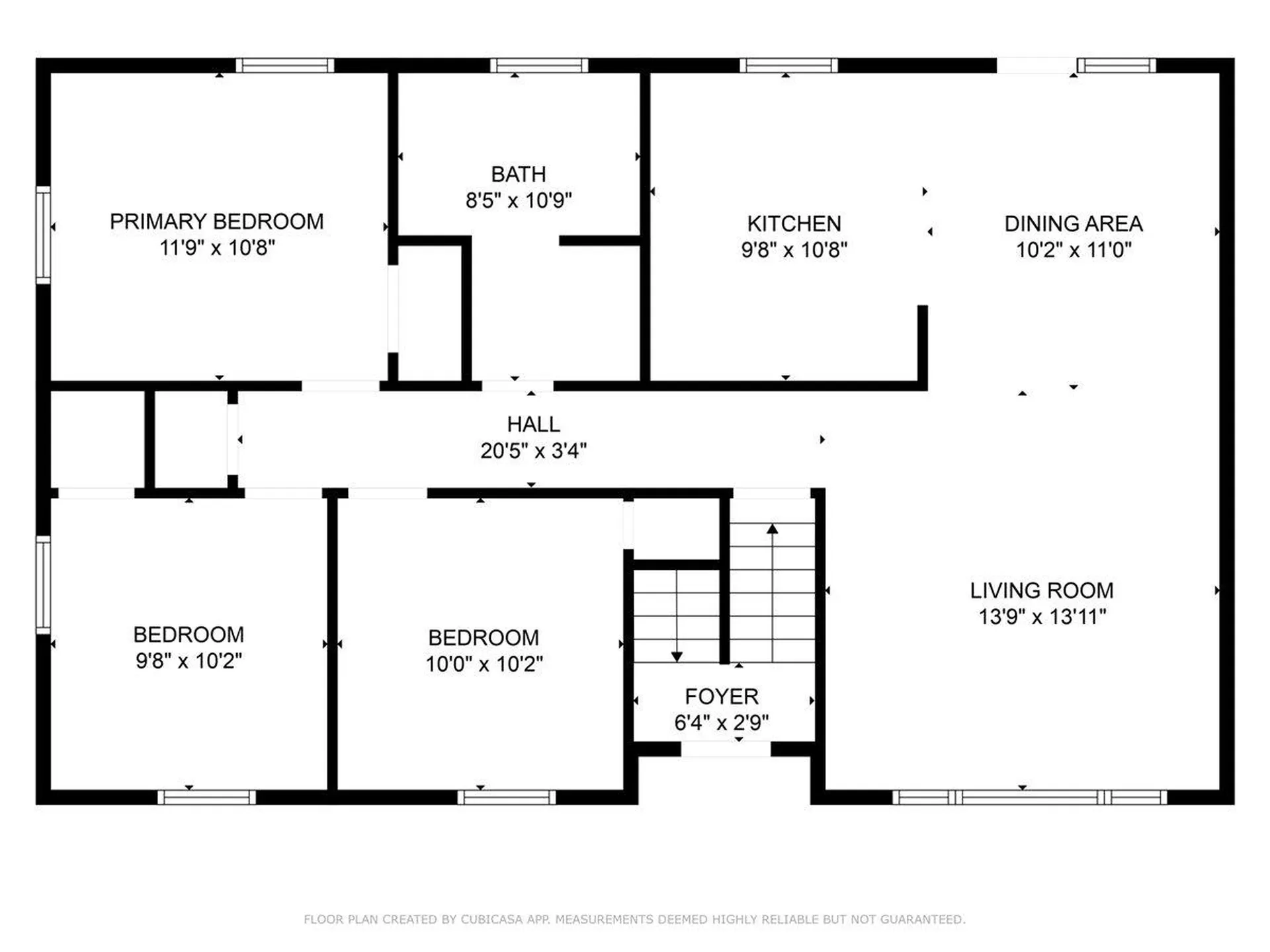
**LIKE NEW, FOLLOWING A "BACK TO THE STUDS" FULL RENOVATION** Fantastic Energy Efficient Jericho raised ranch style duplex! This great opportunity will appeal to all intending buyers, be it an owner occupier or a rental investor. Both units are the popular ranch style layout, with open plan living, kitchen & dining space. The upper unit B, has 3 bedrooms, hardwood floors, and the benefit of a deck for direct outside space. The lower unit A, has 1 bedroom, a guest room, an office, luxury vinyl plank, and the benefit of a mudroom to the rear for extra storage & direct access to the backyard. The savvy purchaser will appreciate the benefits of acquiring a fully renovated building - new windows, kitchens, bathrooms, heating, electrical, plumbing, insulations, siding, the list goes on -so no worries of dealing with big ticket items for many decades to come. Outside, find parking for 4 cars, a spacious yard for gardening or relaxing, and plenty of secure dry storage in the shed, separated for each unit. The location itself is hard to beat, easy access west to Essex or Burlington, or east to ski resorts. Hurry, this opportunity will not last!

Listing Tools

Property Details of 184 Route 15

Property Details

Interior Features

Exterior Features

Utilities and Appliances

Community

Map Location

Broker Reciprocity 

Copyright 2026 PrimeMLS, Inc. All rights reserved. This information is deemed reliable, but not guaranteed. The data relating to real estate displayed on this display comes in part from the IDX Program of PrimeMLS. The information being provided is for consumers’ personal, non-commercial use and may not be used for any purpose other than to identify prospective properties consumers may be interested in purchasing. Data last updated February 18, 2026 4:52 AM EST

 

Hi there! How can we help you?

Contact us using the form below or give us a call.

Send Us A Message:

I agree to receive marketing and customer service calls and text messages from Dousevicz Real Estate. To opt out, you can reply 'stop' at any time or click the unsubscribe link in the emails. Consent is not a condition of purchase. Msg/data rates may apply. Msg frequency varies. Privacy Policy.

Do not fill in this field:

This site is protected by reCAPTCHA and the Google Privacy Policy and Terms of Service apply.

Hi there! How can we help you?

Contact us using the form below or give us a call.

Send Us A Message:

Do not fill in this field:

This site is protected by reCAPTCHA and the Google Privacy Policy and Terms of Service apply.

Hi there! How can we help you?

Contact us using the form below or give us a call.

Send Us A Message:

Do not fill in this field:

This site is protected by reCAPTCHA and the Google Privacy Policy and Terms of Service apply.

Do not fill in this field:

This site is protected by reCAPTCHA and the Google Privacy Policy and Terms of Service apply.

Do not fill in this field:

This site is protected by reCAPTCHA and the Google Privacy Policy and Terms of Service apply.

Do not fill in this field:

This site is protected by reCAPTCHA and the Google Privacy Policy and Terms of Service apply.

$

Do not fill in this field:

This site is protected by reCAPTCHA and the Google Privacy Policy and Terms of Service apply.