Listed by Tracie Carlos of Ridgeline Real Estate

Listing Sold by Flex Realty
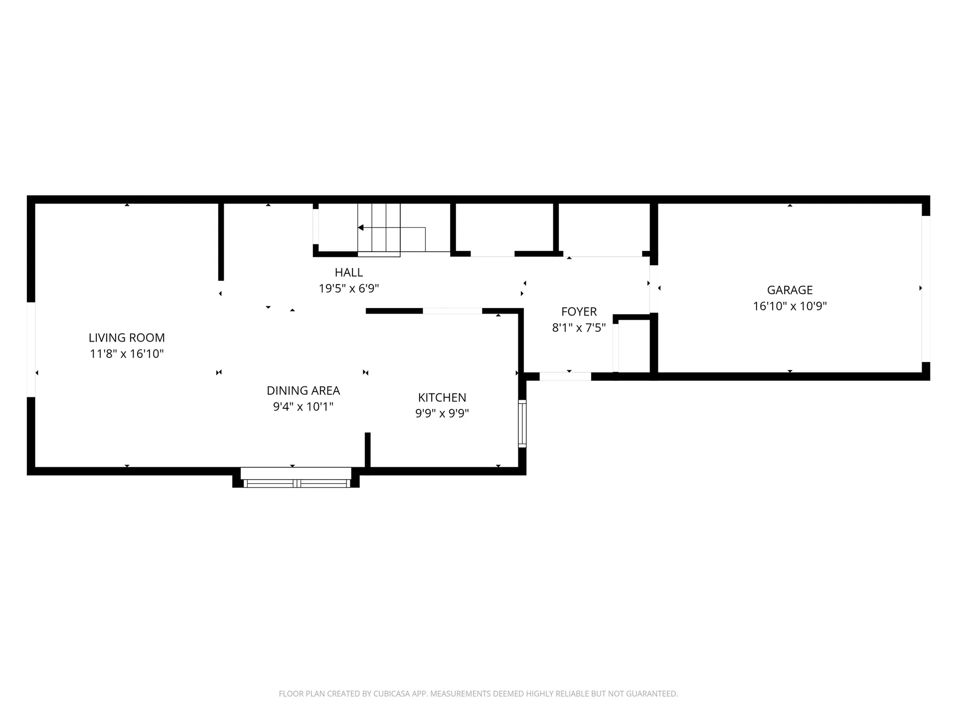
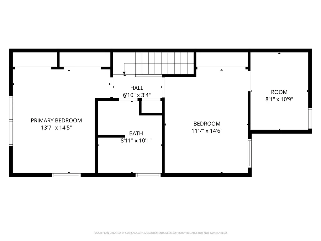
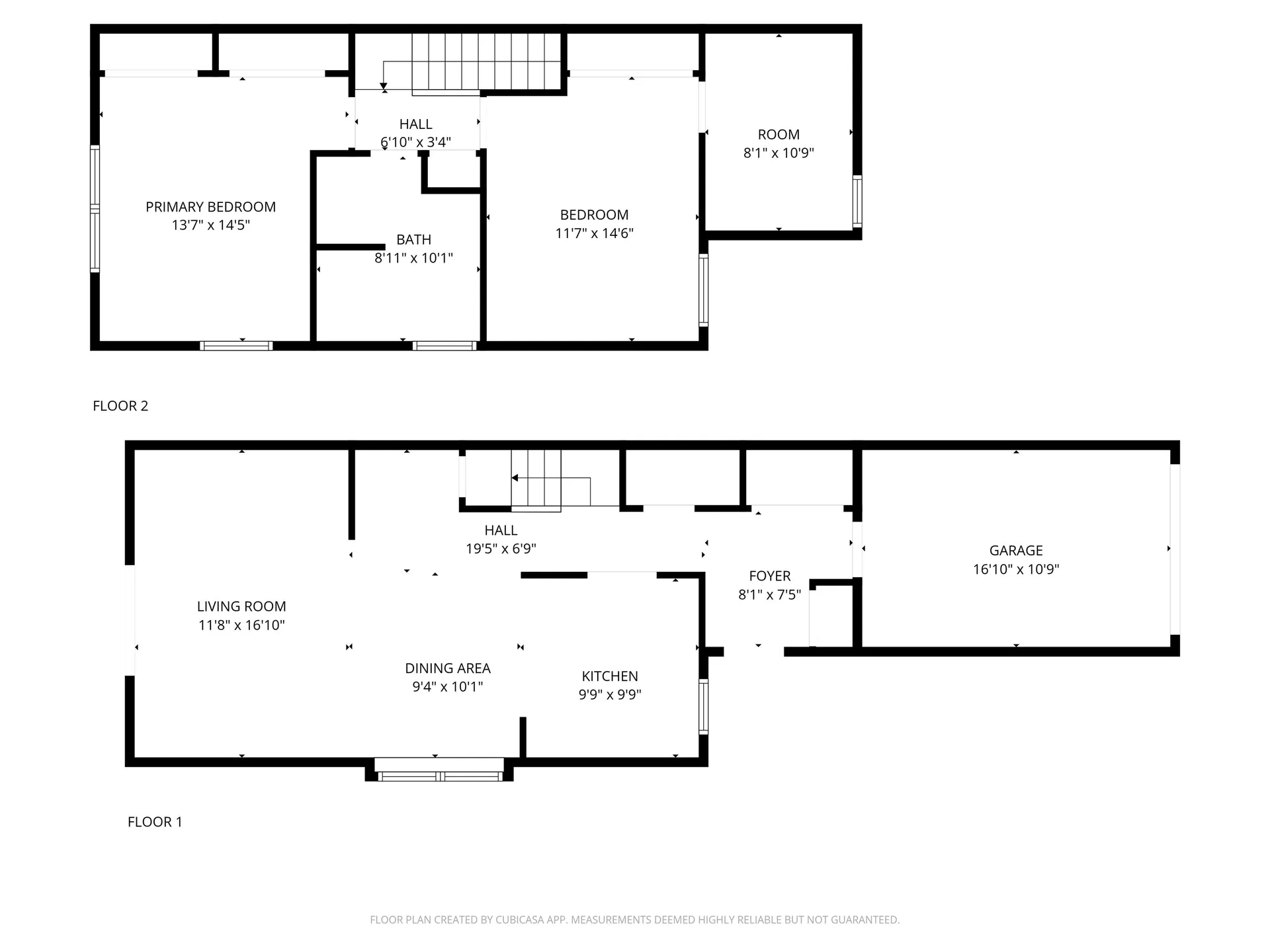
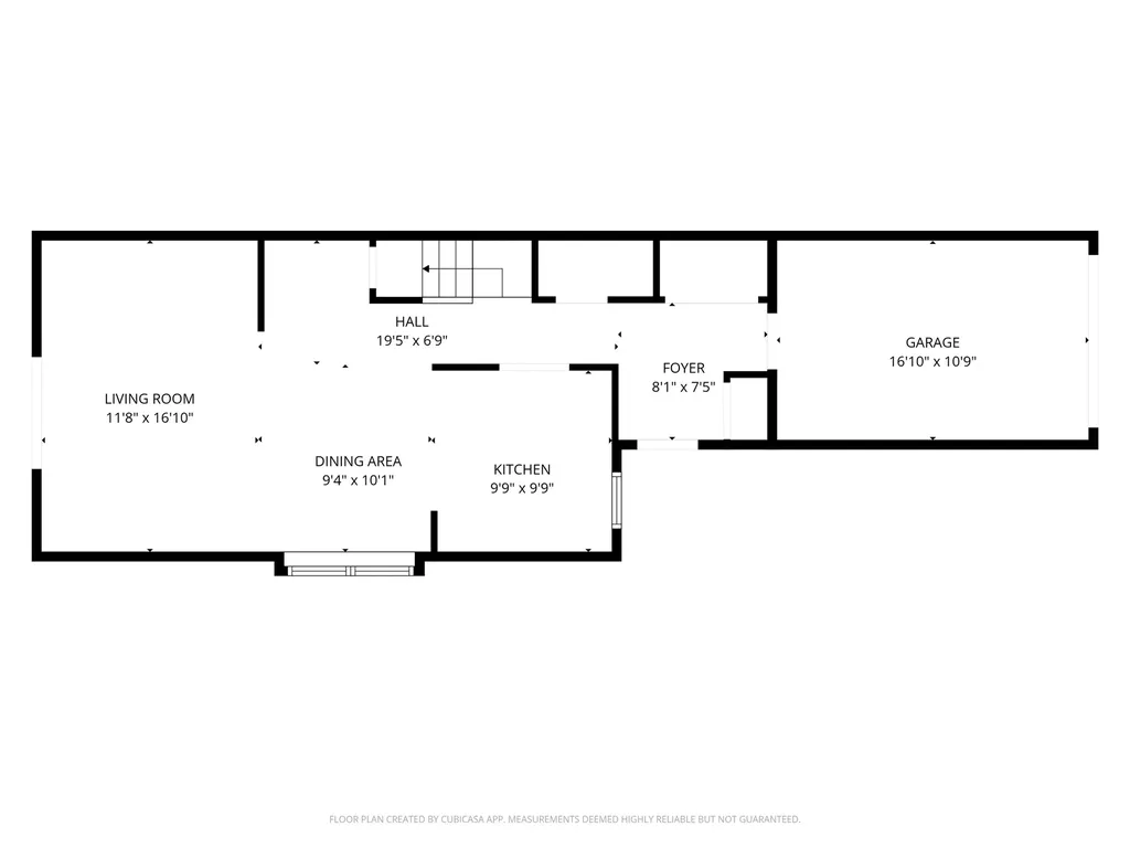
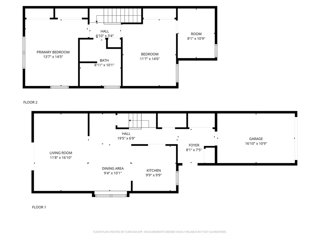
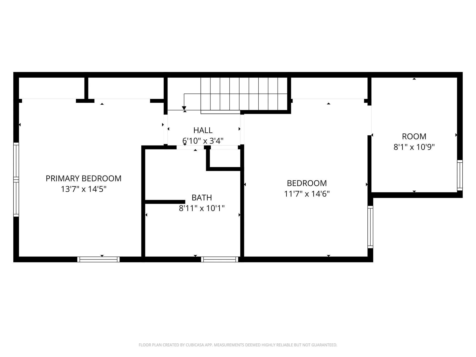
Welcome to this beautifully remodeled two-level townhome, ideally situated in the sought-after Saybrook area, nestled in a tranquil setting near the woods. The owner's attention to detail is evident in the updated kitchen, featuring modern cabinetry, granite countertops, and stainless steel appliances. Enjoy your morning coffee at the breakfast bar, or opt for a meal at the dining table by the garden window. The dining room seamlessly flows into a spacious living room that overlooks the patio, allowing you to appreciate the surrounding nature. As you ascend to the upper level, you'll notice the elegant hardwood floors, generously sized bedrooms with ample closet space, and a remodeled bathroom equipped with a luxurious Jacuzzi tub and dual rain shower features, complemented by a tiled floor. Step outside to relish the well-established gardens, complete with rhubarb plants, or take a leisurely stroll to the vibrant Essex experience, where you can indulge in a variety of exceptional restaurants and shopping options. In the summer, enjoy the convenience of walking to the nearby executive golf course. This is truly a special place-don't miss out on this opportunity!

Listing Tools

Property Details of 102 Saybrook Road

Property Details

Interior Features

Exterior Features

Utilities and Appliances

Community

Map Location

Broker Reciprocity 

Copyright 2026 PrimeMLS, Inc. All rights reserved. This information is deemed reliable, but not guaranteed. The data relating to real estate displayed on this display comes in part from the IDX Program of PrimeMLS. The information being provided is for consumers’ personal, non-commercial use and may not be used for any purpose other than to identify prospective properties consumers may be interested in purchasing. Data last updated March 16, 2026 1:25 PM EDT

 

Hi there! How can we help you?

Contact us using the form below or give us a call.

Send Us A Message:

I agree to receive marketing and customer service calls and text messages from Dousevicz Real Estate. To opt out, you can reply 'stop' at any time or click the unsubscribe link in the emails. Consent is not a condition of purchase. Msg/data rates may apply. Msg frequency varies. Privacy Policy.

Do not fill in this field:

This site is protected by reCAPTCHA and the Google Privacy Policy and Terms of Service apply.

Hi there! How can we help you?

Contact us using the form below or give us a call.

Send Us A Message:

Do not fill in this field:

This site is protected by reCAPTCHA and the Google Privacy Policy and Terms of Service apply.

Hi there! How can we help you?

Contact us using the form below or give us a call.

Send Us A Message:

Do not fill in this field:

This site is protected by reCAPTCHA and the Google Privacy Policy and Terms of Service apply.

Do not fill in this field:

This site is protected by reCAPTCHA and the Google Privacy Policy and Terms of Service apply.

Do not fill in this field:

This site is protected by reCAPTCHA and the Google Privacy Policy and Terms of Service apply.

Do not fill in this field:

This site is protected by reCAPTCHA and the Google Privacy Policy and Terms of Service apply.

$

Do not fill in this field:

This site is protected by reCAPTCHA and the Google Privacy Policy and Terms of Service apply.