Listed by Ferrara Libby Team of Coldwell Banker Hickok and Boardman (Cell: 802-578-9497)
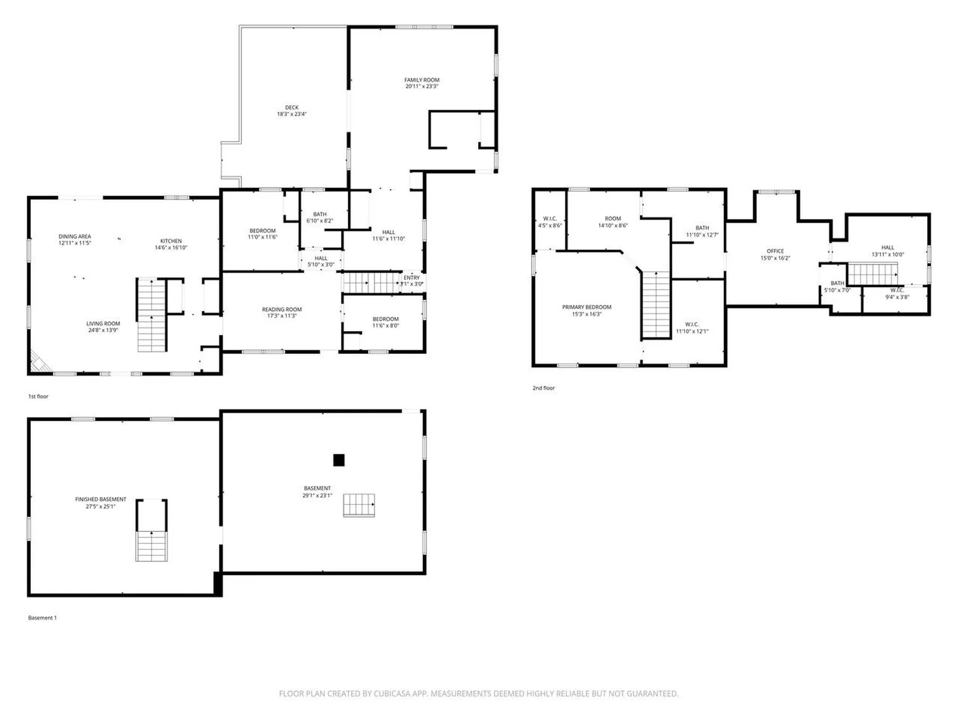
Spacious Colonial farmhouse set on just over 2 acres with sweeping pastoral views, abundant wildlife, and unforgettable sunsets. A welcoming oversized mudroom with new white oak hardwood floors sets the tone for this thoughtfully updated home, designed for both everyday comfort and effortless entertaining. The main level offers exceptional flexibility with two spacious bedrooms, a full bath, a sun-filled dining room perfect for hosting gatherings, and an open-concept eat-in kitchen renovated in 2022, featuring a large breakfast bar, gas range, and two pantries. Also on this level are a cozy reading room and a spacious family room that opens to an expansive low-maintenance deck overlooking the private backyard - ideal for summer barbecues, relaxing evenings, and taking in the surrounding natural beauty. Upstairs, the second-floor layout shines with dedicated office and living space connected by a shared bath. The generous primary suite features two large walk-in closets. Additional living space continues in the finished basement, ideal for a game room, home theater, or workout space. Extensive upgrades include hardwood flooring and refinishing, a new furnace, on-demand hot water, energy-efficient heat pumps for heating and cooling, fiber optic internet, electrical upgrades, and multiple bathroom refreshes. Outdoor features include stone landscaping and a wired 12 x 24 shed offering excellent storage or workshop potential. Additional highlights include a heated garage, abundant closet space, low-maintenance vinyl siding, southern exposure for year-round natural light, and easy access to outdoor recreation, town amenities, Burlington, and Lake Champlain. A rare opportunity to enjoy space, privacy, and modern updates in a highly convenient location.

Listing Tools

Property Details of 28 Manley Road

Property Details

Interior Features

Exterior Features

Utilities and Appliances

Community

Map Location

Broker Reciprocity 

Copyright 2026 PrimeMLS, Inc. All rights reserved. This information is deemed reliable, but not guaranteed. The data relating to real estate displayed on this display comes in part from the IDX Program of PrimeMLS. The information being provided is for consumers’ personal, non-commercial use and may not be used for any purpose other than to identify prospective properties consumers may be interested in purchasing. Data last updated February 18, 2026 9:54 AM EST

 

Hi there! How can we help you?

Contact us using the form below or give us a call.

Send Us A Message:

I agree to receive marketing and customer service calls and text messages from Dousevicz Real Estate. To opt out, you can reply 'stop' at any time or click the unsubscribe link in the emails. Consent is not a condition of purchase. Msg/data rates may apply. Msg frequency varies. Privacy Policy.

Do not fill in this field:

This site is protected by reCAPTCHA and the Google Privacy Policy and Terms of Service apply.

Hi there! How can we help you?

Contact us using the form below or give us a call.

Send Us A Message:

Do not fill in this field:

This site is protected by reCAPTCHA and the Google Privacy Policy and Terms of Service apply.

Hi there! How can we help you?

Contact us using the form below or give us a call.

Send Us A Message:

Do not fill in this field:

This site is protected by reCAPTCHA and the Google Privacy Policy and Terms of Service apply.

Do not fill in this field:

This site is protected by reCAPTCHA and the Google Privacy Policy and Terms of Service apply.

Do not fill in this field:

This site is protected by reCAPTCHA and the Google Privacy Policy and Terms of Service apply.

Do not fill in this field:

This site is protected by reCAPTCHA and the Google Privacy Policy and Terms of Service apply.

$

Do not fill in this field:

This site is protected by reCAPTCHA and the Google Privacy Policy and Terms of Service apply.